Nabízíme soubor kancelářských / obchodních prostor ve 2. nadzemním podlaží budovy Elektrodomu na ulici 28. října 2020/231.
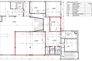
Podlaží je rozděleno do 4 prostor, z nichž aktuálně jsou k dispozici prostory č. 202B a 202D. Pronajmout lze oba prostory nebo každý samostatně s podílem na společných prostorách (výměry 132,3 + 28,9 m2).
Vnitřní dispozice prostoru č. 202B lze před zahájením nájmu přizpůsobit potřebám klienta - možno využít jako obchodní prostor s velkou výlohou.
Prostory jsou vybaveny minerálními podhledy, kobercem, klimatizací. Vytápění v budově je řešeno podlahově.
